Portal Reference: 142860-1222S Form 4A Faculty No: 1883
(Rule 6.2)
Public Notice
In the Consistory Court of the Diocese of St Albans
In the parish of Wheathampstead
Churchyard of St Helen
NOTICE IS GIVEN that we are applying to the Consistory Court of the diocese for permission to carry out the following:
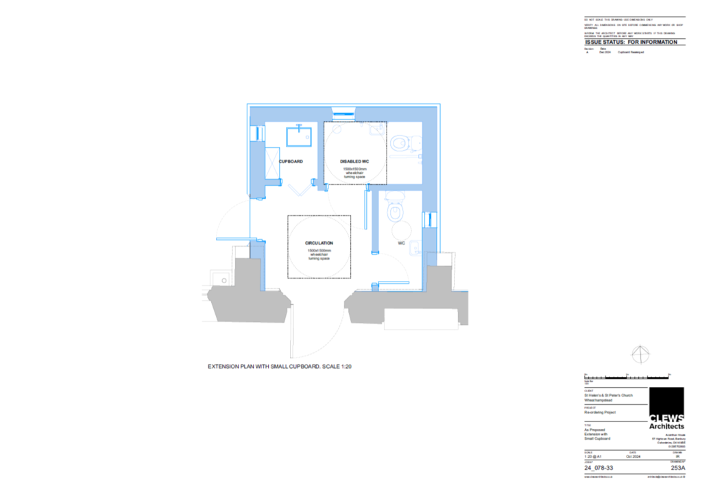
Phase 1 of a phased reordering project. Phase 1 works: creation of a small north extension housing toilet facilities/cleaners cupboard and external works for development, landscaping and new glazed external door to the west entrance to create an accessible main entrance. [Later proposed phases will include (sequence yet to be agreed at PCC); provision of improved refreshment facilities and servery and storage units to chancel; creation of space for children’s activities in the south transept; and replacement of the main nave and aisle pews with chairs, internal screen under the organ, welcoming area and storage in nave.
Relevant plans and documents are below:




Petitioners:
1. MR DAVID HARTLEY – CHURCHWARDEN
2. MRS HILARY HOLLICK – CHURCHWARDEN
3. MRS LINDA THOMAS – READER
Date: 6th January 2026
If you wish to object to any of the works or proposals you should send a letter or email stating the grounds of your objection to The Diocesan Registrar Jon Baldwin at St Albans Diocesan Registry, Winckworth Sherwood LLP, Arbor, 255 Blackfriars Road, London SE1 9AX StAlbansRegistry@wslaw.co.uk so that your letter reaches the registrar not later than 3rd February 2026.
A letter of objection must include your name and address and state whether you live in the parish and/or your name is entered on the church electoral roll of the parish or any other basis on which you have an interest in the matter.